Plassen (Fyresdal)

Fra lokalhistoriewiki.no
Hopp til navigering Hopp til søk

Husmannsplassen Plassen ligg rett nord for tunet på gnr. 91/1 N. Skræi, av og til kalla Skreplass. Denne plassen er bygt ikring 1840. Det har budd to familiar her.

N. Skræi (Fyresdal). To stabbur til h. for innhuset. Mot h., utanfor biletet, låg Plassen. (fotograf Widerøe 1961)

Fyrste familie

Knut Olavson (1881-1860) kom frå Lårdal. Gift i 1836 med Gunhild Halvorsdtr Haugane (1803-1881) frå gnr. 78/4 Ystesund. Dei flytte hit frå husmannsplassen Heggtveit, også under N. Skræi.

Dei hadde fire born: a) Joraand (1837, død same år). b) Asgjerd (1838-1879), død ugift på Plassen. c) Margit (1842-1843). d) Joraand (1842-1941), hushalderske på Lauvvik i Skafså.

Andre, og siste, familie

Ei tid etter 1880-åra hadde Olav Torkjellson og kona Anne Saamundsdatter, Plassen, men seinare var her ikkje folk.

Olav Torkjellson Vatnedal (1843-) var frå Sirdal. Gift 1875 med Anne Saamundsdtr. Neirebø (1842-1895) frå husmannsplassen Neirbø under gnr. 93/1 Foldsæ. Dei hadde fem born: a) Torkjell (1875-). b) Guro (1877-). c) Saamund (1881-1978). d) Birgit (1884-1968). e) Nils Tobias (1887-).

Denne familien flytte før 1900 til husmannsplassen Bergland under gnr. 94 A. Tveiten og tok namnet Bergland. Saamund Bergland vart seinare politikar, stortingsmann og riksrevisor.

Saamund Bergland fortel om Plassen

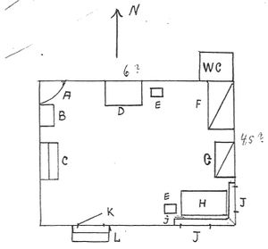
Plassen under gnr. 91/1 N. Skræi. Grunnplan stovebygning

Om tilhøva på Plassen fortalde Saamund Bergland til Alf Mostue, Notodden, som skreiv dette i 1950:

Skreplass var en gammel stue og besto av et rom, ca. 25 kvadratmeter. Rommet var sparsomt møblert. I sengen og slagbenken var det halm. Over halmen ble det lagt en skinnfeld eller ryer. Over seg hadde en enten skinnfelder eller ryer. I slagbenken lå Bergland og hans bror. Under sengen var det skuff som kunne trekkes fram. I denne lå Bergland’s søstre. I sengen sammen med foreldrene lå en yngre bror. Stua hadde to små vinduer som vendte mot syd og øst. Taket var tekket med never og jord. Det var himling bestående av løse sagbord. Midt under rommet var det en kjeller. Hver høst ble det pakket jord rundt ”grunnmuren” for at det ikke skulle bli kaldt. På hjørnet av stua, mot nord, var det do.

Det vart laga ei skisse av stova på Plassen etter Saamund sin anvisning. a) Peis eller åre. b) Kokeomn. c) Skap med tallerkenhylle. d) Bord, flyttbart. e) Stoler. f) Seng med skuff. g) Slagbenk. h) Langbord. i) Benk, festet i veggen. j) Vinduer. k) Utgangsdør. l) Trapp.

Kjelder og litteratur

  • Arbeiderbevegelsens arkiv, Oslo. Bergland, Saamund 40.A. 33 ark. Saamund Bergland fortalde og Alf Mostue, Notodden, skreiv ned i 1950.
  • Pladsen i folketelling 1865 for Moland prestegjeld fra Digitalarkivet.
  • Årbok for Telemark. 2000. Saamund Bergland (1881-1978) Arbeidsmann, politikar og livskunstnar. Ein fyresdøl som fortener å bli hugsa. Ein artikkel av Arne W. Aasland..
  • «Sjå deg attyvi». Fyresdal Sogelag 2011. Saamund Bergland (1881-1978)
  • «Sjå deg attyvi». Fyresdal Sogelag 2007. Saamund Bergland (1881-1978) s. 96.