Villa Schreiner
Villa Schreiner har adresse Langmyrgrenda 79 på Nordberg i Oslo, og ble oppført for Berit og Per Schreiner (1932–2005) i årene 1959-1963 ved arkitekt Sverre Fehn. Bygningen fikk Treprisen i 1973 og Houens diplom i 1991.
Dette er den første enebolig som Fehn tegnet i Norge, men ferdigstilte på samme tid en Villa Norden/Villa Norrköping til Norrköpingsutställningen i 1964, denne ble forøvrig fredet av Länsstyrelsen i Östergötland og Riksantikvarieämbetet i 2001.
Villa Schreiner har inspirasjon fra Japan og Fehn kalt den selv for «Hommage au Japon» (en hyldest til Japan). Både fasadens åpenhet, de aksentuerte tresammenføyningene og skyvedører og vegger av tre er en henvsning til japansk arkitektur.
Bygningen
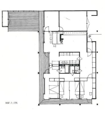
Den har en etasje med alle funksjoner samlet på en grunnflate på 120 kvadratmeter, med skyvedører i glass, store horisontale vindusflater og konstruksjonsstruktur med synlige bærepilarer fra bakkenivået til taket.
Bygningen er en enkel stolpekonstruksjon i laminert tre, satt sammen i moduler og med en kjerne med taklys som kommer inn fra sideveggene i en forhøyning av taket over kjernen. Huset har tette, panelte vegger uten vinduer mot Langmyrgrenda, bare inngangsparti og innkjørsel til garasje. Mot vest og den private hagen er bygningen åpen med store glassflater og skyvedører. Slik kommer naturtomten og den åpne stuen nærme hverandre, og reduserer dermed også opplevelsen av skillet mellom å være ute og inne. Huset har en utvendig søylegang i hele husets lengderetning.
De innvendige veggene er utført i teglstein eller furupanel, mens gulvene er utført i lysgrå terrasso.
Hagen
Bygningen står på fjellgrunn, uten kjeller, mens hagen har skogbunndekke. Det ble under oppføringen lagt ned stort arbeid i å beholde skogspreget i hagen slik at de eksisterende furutrærne ikke ble fjernet.
Fredning
Både huset og hagen ble vedtaksfredet av Riksantikvaren i 2011. Bygningen står i hovedsak slik den var ved ferdigstillelsen i 1963 med en sjeldent stor detaljeringsgrad i den arkitektoniske utførelsen som få norske villaer kan måle seg med. Fehn har også for en stor del tegnet villaens møblement. Alle senere reparasjoner og mindre endringer er utført i samarbeid med arkitekten.
Galleri
- InteriørFoto: Nasjonalmuseet, arkitektursamlingene
- InteriørFoto: Nasjonalmuseet, arkitektursamlingene
- Interiør med kjøkken.Foto: Nasjonalmuseet, arkitektursamlingene
- Utsikt fra stua mot hagen og søylegang.Foto: Terje Forseth/Norsk Folkemuseum (1986).
Kilder
- Sverre Fehn – fredet arkitektur i verdensklasse, Riksantikvaren
- Hommage au Japon – Villa Schreiner i Arkitektur N, nr. 8 1964
- Villa Schreiner i Hidden Architecture
- Villa Schreiner på Riksantikvarens nettsted kulturminnesok.no