Kjeller Flyplass skulle få luftvarslingssentral

Fra lokalhistoriewiki.no
Hopp til navigering Hopp til søk
Et større etablissement i friluft inngikk også i luftvarslingssentralen, dette lå rett utenfor fjellanlegget. Bygningen ble etter krigen tatt i bruk for Forsvarets fotoarkiv, men en brann i 1947 ødela både huset og uerstattelig fotografisk materiale. Fotograf Oscar Pedersen, Lillestrøm. Fotokilde FLO, nr 024-1873-3837.
Badeplass ved Nitelva 1935, med Vestre Nitteberg gård i bakgrunnen. Fjellanlegget ligger i innskutt i fjellet rett under gården. Foto Akershusbasen.
Dette postkortet fra 1934 viser utsikten mot Kjeller og Kjellerholen sett fra Brøter. Fjellanlegget lå i åsen nedenfor Vestre Nitteberg gård i bakgrunnen til høyre.
Foto av et operasjonsrom (Lagezimmer) i en tilsvarende luftvarslingssentral i Esbjerg, Danmark. Hentet fra nettet av Knut Kinne.

Kjeller flyplass var åpenbart av sentral betydning for den tyske krigføringen i Norge. Dette ble tydeliggjort allerede ved bombeangrepet på flyplassen 9. april 1940. Tyskland hadde systematisk skaffet seg gode kunnskaper om Norge på forhånd, og innen angrepet ble iverksatt forelå detaljerte planer for en rekke forhold på og rundt Kjeller. Selv for bolighusene der fantes det nøyaktige planer om hvem av de tyske okkupantenes representanter som skulle bo hvor – etter at de norske beboerne var kastet ut av sine hjem.

1944-situasjonen

Allerede i 1940 og 1941 ble Kjeller innrettet som en sentral base for vedlikehold av de tyske flyene. Flere kjente tyske industribedrifter etablerte underavdelinger, og aktiviteten økte jevnt. Det vil føre for langt å gjennomgå alle firmaer og hendelser. Isteden kan det være av interesse å se nærmere på en spesiell utvikling som fant sted mot krigens siste fase. Tidlig i 1944 startet tyskerne et stort prosjekt som de utad omtalte som ”Telefonsentralen”. Mye tyder på at dette har vært noe helt annet.

Krigens gang

Tyskland vurderte Norges strategiske beliggenhet som svært viktig, og satte mye inn for å holde stillingen. At det på et tidspunkt kan ha vært nærmere 400 000 tyske soldater her i landet understreker dette.

Endringer ved de ulike frontavsnitt ute i verden fikk ofte innvirkning på situasjonen i Norge. De alliertes invasjon i Afrika november 1942 ledet for eksempel til at tyske fly ble overflyttet dit fra Nord-Norge, med redusert styrke i angrepene på Murmanskkonvoiene som følge. Tyske tilbakeslag ved Stalingrad og i Finland økte betydningen av den tyske tilstedeværelsen i Norge. Kjeller var viktig for vedlikehold av tyske fly, enten de opererte i Norge, Finland og inn over sovjetisk område. Det er kjent at flymekanikere fra Kjeller utførte reparasjons- og vedlikeholdsoppgaver i Petsamo i Nord-Finland, det finnes også bilder av dette. Svekkelsen på østfronten medførte at Kjeller og andre tyske anlegg i Norge fikk økt betydning. De voldsomme bombetoktene fra England mot Kjeller må ses i lys av dette. Rundt 100 amerikanske fly i dagangrep november 1943 og 50 engelske fly i nattangrep i april 1944 forteller mye om de alliertes oppfatning av Kjellers betydning.

Vedlikeholdsverkstedene på Kjeller hadde ingen kommandomyndighet innen Luftwaffe, og de hadde nok derfor et begrenset behov for telegrafisk forbindelse med brukerne eller kundene (dvs. de tyske flyavdelingene i Norge). Utenom verkstedene til Brinker, Daimler-Benz og BMW var det vel da bare et feltsykehus og en radiosondeavdeling.

Etter de allierte bombeangrepene i 1943 og 1944, flyttet Luftwaffe etter hvert all verkstedvirksomhet ut fra Kjeller. Men da kommandohovedkvarteret «Fliegerführer 4» i juni 1944 ble overflyttet til Kjeller, ble nok behovet for direkte, raskt og gradert (dvs. hemmelig) samband et prioritert krav. «Fliegerführer 4» var da underlagt sin Kommanderende General med hovedkvarter ved Kemi i Nord-Finland, men han flyttet så til Målselv (Bardufoss) utpå høsten. Fliegerführer 4 ble deretter operativ sjef for tyske flyavdelinger i hele Sør-Norge.

Krypterte meldinger

Det ble benyttet krypterte meldinger på begge sider under krigen. De allierte slet lenge med å knekke tyskernes kode, men til sist skulle det vise seg at en tysk ”førerordre” ble utslagsgivende. ”Der Führer” hadde bestemt at alle brev skulle avsluttes med Heil Hitler! Dette skulle vise seg å være tilstrekkelig til å kunne forstå resten av alfabetet – dermed var koden brutt. Avsløringen ble gjort under Afrikafelttoget i Libya 1942, men den fikk betydning for Kjeller, der det ble anlagt et større antenneanlegg på Ris som igjen sto i sammenheng med antenner på Sten skole, på Nittebergtoppen og antagelig på Lahaugmoen.

Tyske feltpostadresser

Mye av det som under krigen ble gradert Hemmelig er senere blitt nedgradert og tilgjengelig. De tyske feltpostadressene i vårt område er noe av det som kan sette oss på sporet til en ukjent fortid. Innimellom en serie på mange titalls adresser finner vi en som indikerer en virksomhet av stor interesse. Feldpostnummer 24619 Radaranlage Skedsmo ”Sägefisch” kan skjule noe som ligger utenom allfarvei: vei:

  • Radar som begrep ble ikke brukt av tyskerne, men kan peke i retning av lufttrafikkontoll.
  • Sägefisch er en kodebetegnelse på en hemmelig, kryptert fjernskriver.

Disse opplysningene, sammenholdt med de etterfølgende fakta, gir oss en sterk mistanke om at dette kan dreie seg om en luftkontrollsentral av betydelig størrelse og rekkevidde.

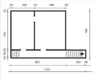
Tegning av luftvarslingssentralens fjellanlegg, hentet fra Riksarkivet. Tysk tekst lyder Felshohlbau Kathedrale, eller ”Fjelltunnelanlegget Katedralen”. Katedral har her intet med kirke å gjøre, det nyttes som et faguttrykk for fjellhaller. Tekst i tittelfeltet: Organisation Todt, Einsatsgruppe Wiking. Bearbeidet av Per Høstland.
Riis ortofoto av Riissletta 1946. Forsvarsanlegget i nord og antenneanlegget øst for Skedsmo Kirkevei med et grunnriss formet som en rombe. Bearbeidet av Per Høstland.
Riissletta kart med antenne, bunker (B) og kanonstillinger (i røde sirkler). Bunkersene ble fjernet ved anlegg av den nye Kirkeveien noen år senere. Bearbeidet av Per Høstland.

Hemmelig fjellanlegg

Asbjørn Larsen arbeidet på Kjeller under krigens siste år, antagelig utskrevet gjennom Arbeidstjenesten. Han har i ettertid nedtegnet sine memoarer, og her skriver han slik om 1944:

«Vi bodde fortsatt på Kjeller, og hver morgen måtte vi gå til Lillestrøm og ta toget til Fjellhamar. Mens vi drev med morgenstellet, hadde tyskerne oppstilling på appellplassen rett utenfor våre vinduer. Det foregikk alltid med en masse kjefting og kommandering som varte minst en halv time. Det var en underoffiser – en feldwebel – som sto for kjeftingen. ….. Da de endelig var ferdig med oppstillingen marsjerte de av sted til Kjellerholen. Der drev de med å sprenge ut en tunnel, som ingen visste hva skulle tjene til.»

Heller ikke naboene visste hva tunnelen skulle brukes til. Terje Klevens foreldre bodde i det nærmeste nabohuset. Terje er født i 1949, men fikk av sin far høre at det eneste foreldrene fikk et nyss om var at bygningen foran tunnelen skulle huse en telefonsentral. I dag vet vi en del mer om fjellanlegget. Tunnelen er beliggende langs Fetveien nær Kjellerholen, på Vestre Nittebergs grunn som vist på kartet. Roald Hansen har sporet opp tegninger for anlegget i Riksarkivet, og Knut Kinne har bistått med å tolke det som der gis av informasjon. Kjellerhistoriens arbeidsgruppe har fått anledning til å bese deler av anlegget, og kan gi følgende beskrivelse:

Anlegget hadde en vestre og en østre inngang. Avstanden mellom inngangene er ca 130 meter. Vestre halvdel av fjellanlegget er tilgjengelig, og benyttes i dag som lager av firmaet TT-Teknikk. Østre del er avstengt – inngangen er blokkert med store steiner. Anlegget var kommet langt da freden kom. Vestre inngang har betongvegger med ståldør. Rundt 40 meter inne i anlegget er det laget en solid betongvegg med gjennomføringer for ledninger og rør slik det er vanlig i tilfluktsrom og fortifikasjonsanlegg generelt. I Riksarkivet fantes kopi av et brev som ble sendt til Overbyggeledelsen i Oslo 11. oktober 1944. Dette bekrefter anleggets eksistens, og det beskriver at det skulle etableres et betydelig ventilasjons- og nødstrømsanlegg.

Det fantes også et bestillingsbrev for et ventilasjonsanlegg til et fjellanlegg på Kjeller. Brevet var rettet til en Hamburg-adresse, og var datert så sent som i februar 1945. Alt peker i retning av at anlegget kunne ha stått klart sommeren 1945. Mye tyder på at hele anlegget var ferdig utsprengt da freden kom, men dette kan vi ikke vite med hundre prosent sikkerhet, siden østre del er avstengt og dermed utilgjengelig for inspeksjon.

Antenneanleggene på Ris og Sten

Høydedragene rundt Kjeller er ikke særlig ruvende, men de var høye nok til å kunne etablere et godt radiosamband. Med spesielt utformede antenner i rombeform ser det ut til at de var i stand til å holde radiokontakt med fly og bakkestasjoner både i Sør-Norge, Finland og Danmark. Hovedantennene ble satt opp på Ris, tett inntil Skedsmo Kirkevei, på østsiden. Det eneste synlige i dag er et betongfundament midt ute på et jorde. Ifølge Kristoffer Løken født 1936 fantes det et tilsvarende forsvarspunkt lenger nord. Denne antas å ha vært en sentral del av antenneanlegget. I tillegg er det nylig oppdaget en konstruksjoner innenfor eiendommen Ristoppen 4 - en nedgravd bunker på 6 x 7 meter, innredet med to rom og adskilt inngangsparti med to utganger. Taket er forsterket med solide I-bjelker.

Ukjent fotodokumentasjon

Videre er det oppdaget en ukjent dokumentasjon om anlegget i den autentiske dokumentarfilmen «Flukten fra hakekorset».[1] Amatørfilmen av den norske flyktningetransporten er under stor risiko tatt opp midt under krigen. Flyktningetransporten gikk via Gjelleråsen og Fetsund til Sverige, men av sikkerhetshensyn måtte de ofte velge alternative ruter. På dette spesielle opptaket må de derfor ha tatt veien om Skedsmokorset og Riis, antagelig for å unngå Kjellerholskrysset. Luftvernkanonen vi ser har sannsynligvis stått ved kanonstillingene på Riis.

Elisabeth Kjølseth, oppvokst i Ristoppen 4, har i 2021 fortalt følgende:

I enden av gangen i bunkeren finnes en dør som førte inn til en gang som gikk gjennom eiendommen parallelt med huset. Denne gangen er fjernet, men en kan se en liten fordypning i plenen. Gangen gikk fram til en bygning som lå på grensen mellom de tre eiendommene som grenser inn til hverandre. Et basseng ovenpå skal ifølge henne være taket på bunkeren. Anleggene er behørig registrert i kommunens kulturminneoversikt.

I tillegg til Risantennene monterte tyskerne et stort antenneanlegg på taket av Sten skole. De to antenneanleggene ble samordnet operert, og begge skulle åpenbart betjene fjellanlegget i ”Kathedralen” ved Kjellerholen. Både lister over feltpostadresser og andre indikasjoner peker mot at det også på Lahaugmoen fantes antenner som inngikk i radiosystemene rundt Kjeller. Med etableringen av tunge kommunikasjonssytemer forsterkes inntrykket av at tyskerne var i gang med å etablere ledelsen av det tyske luftforsvaret i Norge og Finland i Kjellers nærområde. Feltpostadressene bekrefter dette inntrykket. Ifølge en tysk oversikt over egne kommunikasjonssystemer var følgende lokalisert til Kjeller: T-52 Geheimschreiber – den hadde også kallenavnet Sägefisch. Systemet hadde dekknavnet Karbunkel. Det var en fjernskriver som også krypterte, produsert av Siemens & Halske. Det ble brukt til å sende topphemmelige meldinger.

Kanonstillinger rundt flyplassen

Okkupantene ser ut til å ha valgt seg ut et nett av høydedrag rundt plassen for etablering av luftvernkanoner. Alle synes å ha hatt samme grunnoppbygning: En sentral vaktbunker med løpegraver ut til tre separate kanonstillinger i ulik avstand rundt. Her er tre som er nokså lett å definere:

  1. I Brøterbakken nedenfor Brøter gård. Ikke synlig i dag, men en fotoreportasje fra 1985 gir et godt inntrykk, se Området nær Kjeller gård - avsnitt 4. "Luftvernstillingen ved Brøterbakken".
  2. Ved Øvre Riis, på begge sider av Skedsmo Kirkevei. En sentralt plassert bunker på 6 x 7 meter ligger i hagen til Riistoppen 4. Tre kanonstillinger er markert på kartskissen "Riis ortofoto...."
  3. På høydedraget bak Kjeller gård ser det ut til å ha vært rigget ut fra samme lest som Riis-stillingen.

Ut over dette kan det tenkes å ha vært stillinger vest (langs Nitelva) og sør for plassen (i Rælingen). Disse er ikke definert med sikkerhet. Men på den noe fjernere Lahaugmoen er det nok mer sannsynlig at en luftvernkanon var montert. Vi har ikke kunne finne konkrete opplysninger rundt dette.

Antenneanlegg Nittebergtoppen

I tillegg til antennene på Ris og Sten vet vi at det var et antenneanlegg på Nittebergtoppen, rett over fjellanlegget. I tillegg er det sannsynlig at også et antenneanlegg på Lahaugmoen var tilknyttet.

Tyske antennemaster på Kragerud

På Kragerud (Kråkerud) gårds grunn innenfor dagens Lillestrøm kommune, førte tyskerne opp to svære antennemaster langs Trondheimsveien. Høyden kunne være godt over 20 meter, og de var kraftig bardunert i store betongklosser. Den ene masten lå ved dagens informasjonssøyle (2024), den andre 50 meter lenger mot det nærmeste huset, Trondheimsveien 15. Erik Aaraas mener dette huset kan være helt eller delvis bygd på restene etter et av to hus som ble oppført nær mastene under krigen, antagelig vaktstuer eller tekniske rom i tilknytning til antennene.

Annet som underbygger teorien

Feltpostadressene røper at det på Lahaugmoen var installert fjernskrivere, hvilket tyder på at også Lahaugmoen var spunnet inn i nettet rundt luftkontrollsentralen. Et forhold som ytterligere indikerer at Kjeller skulle få en utvidet rolle var at funksjonen FLIEGER-FÜHRER WEST på Lade utenfor Trondheim i det samme tidsrommet ble overflyttet til Kjeller.

Kinnes kommentarer

Knut Kinne har lang fartstid i Forsvaret. Han har gitt denne kommentaren til tegningene:

«Det er tydelig at rom nr. 9 er beregnet for FLIEGER-FÜHRER (dvs. sjefen eller luftkommandøren), og vi ser at rom nr. 13 – det store rommet nærmest østinngangen (OSTEINGANG) benevnes LAGEZIMMER. Med det forstår jeg et operasjonsrom eller kommandorom, hvor de holder oversikt over flysituasjonen (i hvert fall for egne fly) til enhver tid. Et bilde av et tilsvarende Lagezimmer i Esbjerg er lagt ut på nettet. Av andre ting kan vi notere oss to fjernskriverrom – et for hemmelige (geheim) og et for åpne/ugraderte (offen) meldinger.»

Luftkontrollsentral for større områder?

Det er usikkert hvilket virkeområde sentralen skulle dekke. Østlandsområdet er en naturlig første gjetning, men i tillegg er det sannsynlig at ett eller flere av disse områdene kunne innbefattes – avhengig av radarens dekningsområde:

  • Sør-Norge med havområdene
  • Nord-Norge med havområdene
  • Danmark, helt eller delvis
  • Finland

Fotnoter

  1. Flukten fra hakekorset fra Forsvarets historiske filmarkiv på YouTube.

Kilder

  • Kjeller flyplass 75 år 1912-1987. Utgitt av en redaksjonskomité. Kjeller 1987. Digital versjonNettbiblioteket.
  • Kvaal, M. T.: Kjeller flygeplass 1912-1952. En kort beretning om vår flygnings første tid. Lillestrøm 1952. 16 s. Ill.
  • Modalsli, Sigbjørn: Fra flyvningens vugge til teknologisk senter – Kjeller flyplass gjennom 100 år. FLO Kjeller 2012.
  • Takk for hjelp fra gode bidragsytere:
    • Roald Hansen
    • Willy Hveding
    • Per Høstland
    • Knut Kinne
    • Elisabeth Kjølseth
    • Terje Kleven
    • Kristoffer Løken
    • Torkil Horne


Kjeller kart grunnlag 1878.jpg Inngår i prosjektet Kjellerhistorien, der det legges ut artikler og bilder i Kjellers historie fra starten i 1912 til i dag. Lokalhistoriewikiens brukere kan fritt redigere og utvide artiklene. Flere artikler finnes på prosjektets forside og i denne alfabetiske oversikten.